Aspectos de la ordenación urbana de Itálica
Resumen.Mediante el presente estudio, se pretende realizar una reflexión sobre los trabajos necesarios para dotar a esta ciudad de sus características urbanas y darle así una fisonomía imperial al modo de los imperantes en Roma, logrando así una mayor gloria y prestigio social de su patriciado y aristocracia local, quienes no lo olvidemos, eran en ese momento la cúspide de la sociedad al formar parte de la “gens” imperial en unos casos, o ser su clientela en otros; acogidos por tanto a su patronazgo. Todo ello, se verá reflejado en esta nueva ciudad, promovida e incentivada por Adriano en honor a Trajano, llevándose a cabo la ampliación de Itálica, con grandes obras monumentales públicas y privadas que, pese al gran esfuerzo material y humano empleado, aún son hoy desconocidas para el público, tales como: los viarios, las cimentaciones de las casas y edificios, las cloacas, etc.
Palabras Clave: Itálica, investigaciones urbanísticas, saneamiento, abastecimiento de agua, Cloaca Máxima, viarios, fistulas.
Italic, the importance of the occult.
Abstract.
The purpose of this study is to publish a part of the works which were necessary to give this city of urban features and imperial physiognomy in the manner of the prevailing in Rome. For the greater glory and social prestige of their oligarchy and local aristocracy, who were the cusp of society at that moment, being part of the imperial “gens” in some cases, or forming part of their clientele in others, therefore they were admitted into its patronage. All this, it will be reflected in the urbanization of this new city, promoted and encouraged by Adriano in honor of Trajano, carrying out the expansion of Italic, with great public and private monumental works. Despite the great material and human effort employed, these works remain hidden such as roads, foundations, sewers, etc.
Kew words: Italic, Adriano, imperial physogomy, monumental works, urbanization.
Introducción.
Si realizamos un breve repaso a la historia de Itálica, veremos que las visiones que se han ido dando desde el comienzo de su estudio han sido múltiples y variadas. Al principio la imagen de este conjunto la facilitaron anticuarios, coleccionistas, con descripciones y estudios de eruditos como Fray Zevallos ó literarias, entre las que destaca la famosa elegía de Rodrigo Caro, posteriormente serían los viajeros del XVIII y XIX con sus ilustraciones (Ford, Gautier, Latour) los encargados de mostrarnos su visión. Desde mediados de este siglo y comienzos del siglo XX comienzan los estudios más o menos arqueológicos llevados a cabo por Ivo de la Cortina, Demetrio de los Ríos y el mismo Bonsor soportados en dibujos y planos más o menos exactos, empleando como novedad tecnológica, alguna que otra fotografia.
Con todos ellos la visión que aún ofrecía el conjunto era de tipo romántico, la ruina era su núcleo y casi en exclusiva el Anfiteatro como su principal activo, esta idea de la ruina es trascendental puesto que dará lugar al nombre del conjunto durante años, llamándose hasta mediados del Siglo XX, "Ruinas de Itálica". Durante las primeras décadas de este siglo la defensa de las actuaciones en el conjunto, se centraran principalmente en el Anfiteatro de Itálica, como refleja A. Parladé en su Memoria Excavaciones de 1920-21.
Desde mediados del siglo XX en adelante se va tomando conciencia de la existencia de una cierta ordenación urbana del conjunto, hecho este, que unido al empleo de nuevas herramientas (como la fotografía), una metodología más científica en el modus operandi de la forma de trabajar, un mejor tratamiento de los datos que constantemente se obtienen, etc., hacen que sin perder su carga romántica que siempre la tendrá pasa a ser complementada con una visión axonometrica. Se estudia ya como una ciudad ordenada y planificada por sus calles, viarios, cloacas, edificios, etc, como se puede apreciar en los estudios de Pellicer (Boletines de Bellas Artes R.A.B.A Sta. Isabel Hungría), archivo fotográfico de Collantes de Teran o la reconstrucción y consolidación del viario de Cañada Honda realizada por Luzón en la década de los 70. Sin olvidarnos de García y Bellido quien ya indicaba en los años 60 en su Colonia Aelia Augusta Italica, la existencia de una planificación absoluta a modo de Roma.
A finales de siglo hay la visión es cada vez más completa por un desarrollo de nuevas tecnologías que amplían los conocimientos y así se facilitaran ya visiones de viviendas, vías, edificios, etc., es el caso del estudio sobre el Traianeum de Pilar León, de las publicaciones teóricas sobre los tipos de casas R. Corzo, la traída del agua por el acueducto de A. Canto o por último sobre las cloacas de A. Jiménez. Y como no citar a Rodríguez Hidalgo, rehabilitador de la Casa de los Pájaros y coautor con Ceballos y Fatuarte de una publicación con una muy amplia visión arqueológica sobre el conjunto de Itálica.
A todas estas visiones hay que añadir una nueva óptica, que es la del paisaje y su entorno, como una integración en el conjunto de Itálica ofrecida por Amores y Rodriguez Hidalgo.
Para finalizar este breve resumen historiográfico no hemos de olvidar el artículo de J.R. López Rodríguez sobre devenir italicense en la centuria de 1912 al 2012, de la cual se publicara una edición (L. Rodríguez y Beltrán), que repasa de manera exhaustiva los últimos cien años de estudios, logros y actuaciones, que concluye con la reflexión: “Queda mucho por descubrir”.
Según se puede apreciar por lo anteriormente expuesto los trabajos acaecidos en el Conjunto Arqueológico de Itálica (CAI) en el último siglo han sido muchos y variados, siendo alabada o cuestionada la actuación, según la tendencia o visión arqueológica del momento, pero con mayor o menor acierto, el resultado ha sido evidente, se ha ido desmadejando e interpretando una ampliación impresionante de la ciudad, tanto por su extensión, como por su lujo y todo ello en el reducido tiempo de ejecución de la nueva ciudad, la Urbs Traiana o Nova Urbs, dada la envergadura de sus obras, los autores hablan de una horquilla comprendida entre unos 10 ó 15 años.
Esto por su parte implica la existencia de una planificación detallada y una ejecución muy elaborada de las obras según el canon seguido por la ciudad de Roma a la que sin duda se toma de referencia puesto que no olvidemos Itálica es el núcleo duro del lobby hispano de la Baetica de la que forma parte la familia imperial y por lo tanto la función como elemento de prestigio a nivel de estatus social que esta obra va a significar. Además ahora se verá incrementado por los gustos de Adriano gran impulsor de obras públicas de vital importancia y de cuyas rentas ha vivido occidente durante siglos.
Nuestro estudio se basa en lo ya anticipado por García y Bellido de que esta Urbs Traianea, estuvo desde el primer momento estudiada según los nuevos cánones que impuso Nerón por el incendio de Roma como hemos indicado en párrafos anteriores; que se harán extensivos en la planificación y construcción de todas las nuevas urbes del imperio .
La pretensión de nuestro estudio es mostrar una nueva cara del poliedro que es Itálica, hasta ahora poco tratada, puesto que estamos hablando de grandes movimientos de tierras, de ingentes cantidades de materiales que se habrán de utilizar como son maderas, sillares para cimentación, piedras de gran tamaño para solado, ladrillos para todas las fases de la construcción desde elemento básico para las cloacas, para muros, viviendas, etc., por no hablar de la utilización de tégulas, una gran diversidad y profusión de tipologías de marmoras (carrara, cippollino, rosso antico, etc), material pétreo para revestimientos, plomo para las fistulae, etc… Esto como hemos dicho implica la existencia de un gran cantidad de personal ya mencionados para las diversas trabajos desde carpinteros, lapidarios, marmolistas, albañiles, arrieros, etc. A todos ellos hay que añadirles el personal artesano procedente de diversos talleres que desarrollaran su labor preferentemente en la ornamentación de las distintas y diversas “domus” como estucadores, expertos en la ejecución de mosaicos, etc.., muchos de los cuales ya vendrían elaborados con los motivos principales desde el propio taller de origen y posteriormente se montarían in situ con los remates finales con la elaboración las teselas en la propia domus según la necesidad. Teniendo en cuenta la cantidad estimada de opus teselatum (mosaicos) que había en cada domus es lógico pensar en la existencia de varias cuadrillas simultaneas.
Otra mención a realizar es la de los edificios públicos, como son las Termas, Palestra, Traianeum, etc... todos ellos con sus correspondientes mosaicos, estucos, columnas, solerías de mármoles (con mayor o menor tipo de elaboración –opus reticulatum-), mármoles para placas y para recubrir, aras, fuentes públicas, etc… sin dejar de mencionar las estatuas y obra ornamental elaborada. Pero conjuntamente con estas construcciones de la Urbs Traiana, coexisten; la de los Ludi Sceni (teatro) con su templo de Isis y su correspondiente Nilómetro, la remodelación de las antiguas termas, hoy denominadas Termas Menores, la ejecución del Anfiteatro y del aún no determinado Coliseo, amén de la construcción y consolidación de las murallas perimetrales.
Toda esta actividad concentrada en un corto espacio temporal, nos lleva a pensar en la existencia de tensiones; en el suministro de los materiales; en la escasez de determinados productos y su fabricación (lo que produciría demoras y encarecimientos por la gran demanda puntual de los mismos); en los constructores y como no, con la propia mano de obra. Recordemos un claro ejemplo de todo esto en lo ocurrido cuando entre nosotros se celebró en Sevilla la Expo 92, donde en determinados momentos la obtención de recursos materiales y humanos fue un gran problema.
Respecto a las domus, la casa unifamiliar romana, hay que reseñar que al ser construidas y diseñadas para mostrar el prestigio social de los considerados principales del imperio, cuentan con todo tipo de lujos conocidos en la época, donde ya la austeridad del modelo de casa griega se ha abandonado en la propia Roma y solo se toma como una primera referencia, esta nueva tipología de domus se dotará de vestíbulo, atrium, peristilo, impluvium bajo un compluvium, con varias estancias, patios diversos con zonas privadas y públicas (exedras, triclinium y tablinum) y con elementos ornamentales por doquier como fuentes, estatuas de mayor o menor calidad de bronce o mármol.
Pero otra cuestión muy importante, es que imitando modelos imperantes en Roma, Pompeya y otras ciudades, cuentan con termas propias y con agua no caduca o sea agua corriente (usan cañerías de plomo, fistulae, y válvulas que actuaran como controladora del caudal que entra- como las que se pueden observar en el museo arqueológico de Sevilla) para los diversos usos, además de contar con aljibes para recogida y almacenamiento de aguas llovedizas, letrinas y su correspondientes atarjeas para la salida de las aguas residuales o caducas. A imitación de lo que viene haciéndose en las grandes villas –domus- de la capital imperial.
Otro punto a tratar es sobre las dimensiones, según los diversos autores y los datos obtenidos por los estudios realizados en los estudios geofísicos y de georadar, estamos hablando de unas 38 hectáreas, para toda la Urbs Traianea, incluyendo -el pomerio- la muralla que la delimita y gran diversidad de construcciones con estructuras muy sólidas (palestra, zona de las termas y edificios anexos (¿basilica?), Traianeum, muralla con sus puertas y sus torres, etc.), aunque podemos decir que referente a las viviendas (domus) y sus plantas, es donde se aprecia una gran variedad y heterogeneidad de dimensiones, entre las que conocemos y las que se estudian en la actualidad, las menores superarían los mil metros con cierta holgura.
Todo esto es lo que nos lleva a plantearnos la necesidad en su origen de una planificación absoluta de esta Nova Urbs y los grandes e ingentes movimientos de tierras que debieron de llevarse a cabo, con los escasos medios materiales de la época (carretas, tiro animal, escasez de herramientas, grúas de madera, etc.) comparados con los actuales; por no hablar de las también ingentes cantidades de materiales constructivos para la urbanización básica como son la cal aérea, madera, ladrillos, gravas y cantos rodados, piedra de tarifa para solar, plomo, etc. y la manera de transportarlos hasta su lugar definitivo, todo esto es tan solo el apartado de la planificación de la urbanización previa.
Por los restos conservados en la actualidad, generalmente escasos y con frecuencia a la cota del suelo, solo podremos tener una breve idea de la planimetría de los edificios, a lo que hay que añadir, que por efectos de la reutilización lógica de los materiales constructivos cuando se va abandonando la ciudad, ya en época tardorromana y sucesivas, solo nos van a quedar aquellos elementos que no van a poder ser fácilmente extraídos y ó manipulados sin sufrir deterioro para su posterior utilización que por lo tanto permanecerán in situ, como será el caso de los mosaicos, bases de cimentación y restos de la urbanización. A consecuencia de lo anteriormente manifestado este estudio se va a centrar en los restos urbanísticos que nos han quedado, que en muchos casos no son visibles a simple vista, lo que ha posibilitado su digamos salvación y conservación, dotándonos así de la posibilidad de estudiarlos.
Obtención de datos.
Como consecuencia de lo anteriormente manifestado, este artículo se va a centrar en tres puntos muy concretos; los viarios, el abastecimiento de agua y su saneamiento, que suelen ser a primera vista temas de menor interés, ya que estando parcialmente ocultos al visitante no pueden hacerse una idea del avance técnico que suponía para la época las infraestructuras de las que disponía una ciudad romana como la presente. Eran de una importancia tal, que hasta la tercera década del siglo XX no se alcanzará a estar a la altura de salubridad que aquí disponían en el siglo II de nuestra era.
Todo esto era consecuencia de una tecnología punta como la que disponía la sociedad romana en el campo de la topografía, mecánica e hidráulica. Eran capaces de trazar con precisión sobre el terreno todo aquello que planificaban y calculaban, preveían excavaciones, materiales necesarios y las obras auxiliares que podían necesitar para la ejecución de las instalaciones proyectadas, estas en ocasiones podían ser ya todo un reto a fecha actual. Simplemente, situar en la campa próxima al Traianeum las 100 columnas monolíticas que se iban a tener que utilizar, era toda una proeza y muestra a su vez de un gran ingenio, hablamos de unas piezas que podrían rondar las 18 Toneladas métricas cada una.
Debido al aluvión de datos y estudios de diversa procedencia se procede a recabar información documental y gráfica de distintos investigadores por un lado y por otro se trabaja tomando datos in situ, de esta manera se realiza un levantamiento del perfil de la cloaca sita en el Cardo A-B (Cardo Máximo), nomenclado así en el Plan Director del CAI, a la vez que se estudia su sistema constructivo.
Para ello se va a detallar cada uno de los bloques, anteriormente citados, por separado, atendiendo en primera instancia al orden lógico de la redacción de un proyecto y no al de ejecución, primero, el trazado de las calles, segundo, trazado del saneamiento y tercero, las instalaciones que discurren por el parcelario, en este caso distribución de aguas y conexiones a la red de saneamiento. Sellos inconfundibles de la gran diferencia entre la urbe y lo agrícola, entre pertenecer a Roma o no. Actualmente lo que define a un suelo como urbano según el articulo 45 de la Ley de Ordenación Urbanística de Andalucía es:
“a) Formar parte de un núcleo de población existente o ser susceptible de incorporarse en él en ejecución del Plan, y estar dotados, como mínimo, de los servicios urbanísticos de acceso rodado por vía urbana, abastecimiento de agua, saneamiento y suministro de energía eléctrica de baja tensión.”
Son estos servicios los que en aquella época al igual que en esta definen y caracterizan una URBE.
Los viarios y parcelaciones.
El trazado hipodámico de la ampliación, atiende a una ciudad de nueva planta, donde se define tras la elección de la alineación este, oeste que facilita el astro mayor y trazando una perpendicular por un punto de relevante importancia.
En este caso parece que la orografía condicionó las directrices que recomendaba M.L.Vitrubio Polión en sus X Libros de la Arquitectura, corrigiendo las alineaciones cardinales en torno a 30º dirección oeste para adecuarlas a la situación los cauces naturales que allí dominan. Amoldándose a su vez con una cierta inclinación a los vientos dominantes, de poniente en este caso, evitando que estos circulasen frontalmente por los decumanos, permitiendo así que fluyeran de manera controlada sin ser molestos en los meses de invierno.
Las calles presentan una característica común, los dos tipos imperantes en la ampliación disponen de acerados cubiertos en torno a 4 metros, diferenciándose en el ancho de calzada, donde generalmente los cardos presentan 8 metros entre alineaciones de bordillos y en torno a los 5 o 6 en el caso de los decumanos. Aunque podemos observar cómo se rompe esta norma en dos puntos, el decumano máximo y el situado frente a las termas mayores que presentan un ancho de 8 metros.
La capa de rodadura de la calzada se encuentra ejecutada con piedras de tarifa, una caliza de grano muy fino y compacta, con forma poligonal irregular y un espesor medio que ronda los 12 cm (los espesores encontrados están entre 8 y 16 cm según el muestreo seguido por el parcelario), al igual que los bordillos que la encintan, asentadas dichas losas sobre un lecho de gravas dispuesto en tongadas abrigadas en una caja abierta en el terreno y perfectamente compactada como era de rigor.
Las que actualmente podemos observar en el Cardo A-B (Cardo Máximo), A1 y D1 (Cañada Honda), como ya se ha indicado anteriormente, han sido fruto de reinterpretación llevada a cabo en la década de los años 70 bajo la dirección de J.M. Luzón como consecuencia de reparaciones puntuales del pavimento teniendo que emplear canteros para tal fin .
Figura 1 Cardo Máximo A-B.
Fotos de autor
En cuanto a sus perfiles las calzadas se ajustan muy bien la orografía no precisando en su ejecución más que los movimientos de tierras necesarios para la apertura de caja, que las contienen, sin tener que efectuar grandes desmontes ni terraplenes. Como los que por otra parte si son necesarios en el interior de las parcelas de los sectores A y D principalmente. Estos presentan desniveles más pronunciados, con pendientes que oscilan entre un 6,5 % en el Cardo A-B y un 8% de media en el Cardo A1 y su prolongación por el Cardo D 1 siendo precisos el uso de bancales o aterrazamientos para la construcción de las viviendas.
Figura 2 Detalle de sectorización sobre la planimetría de planta del CAI.
Autores.
Los viarios ocupan una superficie aproximada de 36.000 m² sobre el parcelario, calculo que se ha obtenido sobre la planimetría facilitada por el CAI, así que si tomamos como referencia una sección tipo de calzada romana, con una apertura de caja de unos 50 cm de profundidad media, nos supondrían un volumen teórico de excavación total que rondaría los 18.000 m³, ejecutado por medios manuales y transportados en carros con una capacidad de carga entre 3 y 4 m³. Esto tendría que ser posteriormente rellenado en varias tongadas con áridos de distintas procedencias y diámetros. Terminando con una capa de rodadura (de piedra de Tarifa), ejecutada con piezas poligonales irregulares de gran formato.
Este tipo de piedra, tiene una densidad media de 2.700 kg/m³, así que el metro cuadrado de calzada (pavimento) con un espesor medio de 12 cm viene a pesar 324 kg esto nos permite hacernos una idea de la cantidad de recursos necesarios para la ejecución de dichos trabajos. En total, tuvieron que colocar casi 12.000 Tm en losas, que podían pesar más de 80 kg unidad, o lo que sería el equivalente entre unas 140.000 y 150.000 losas en el parcelario, material que hubo previamente que: calcular, organizar su extracción, transportar y entregar de manera constante para la ejecución de dicha obra.
Cloacas.
Todas las que se han podido analizar en este estudio están fabricadas con ladrillo macizo de formato 29 x 22 x 5 cm recibido con mortero de cal y arena, sin revestir en su interior, con distintas tipologías en los alzados de sus secciones. Bóvedas, en los colectores generales, coronadas con dos tégulas inclinadas en los secundarios y rematadas con ladrillos horizontalmente en el interior de las parcelas y acerados.
Esta red presenta un entramado perpendicular entre cardos y decumanos siendo en general los colectores principales los pertenecientes a los cardos con salida al exterior y los secundarios situados en los decumanos los que deben de recoger a través de acometidas las atajeas procedentes de las viviendas. Con la clara excepción de Cañada Honda donde la conexión al exterior se hace por el arroyo que circula encauzado bajo el decumano D-3.
Para el estudio de la pendiente de la cloaca del Cardo A-B (Cardo Máximo) se procedió a la realización de la correspondiente nivelación de la calzada en su eje longitudinal central y la toma de datos en los puntos donde se encuentra al descubierto la cloaca. A su vez, se tomaron datos de la composición de esta, ancho del canal, alto de los muros laterales, altura de la bóveda, así como, de las dimensiones de los ladrillos y su disposición pudiéndose hacer una ligera idea del sistema empleado.
Por lo que se ha podido ver en otros restos de saneamientos originales en la zona del Cardo máximo C-D próximo al Traianeum, parece ser que, la labor de ladrillo está exteriormente reforzada por un “hormigón” de cal ciclópeo en todo el perímetro de su sección, como podremos observar en las figuras 3 y 4.
Con esto de ha podido realizar una estimación de los volúmenes de excavación y transporte de tierras sobrantes a vertedero o bien dispuestos en las parcelas que pudieran precisar aterrazamientos, ya que según la orografía así iban a necesitarlo.
Para esta cuestión se estudian dos modelos de colectores, los principales hallados por lo general en los cardos y los secundarios sitos en los decumanos.
Como principales, los localizados en los Cardos A-B y C-D, el primer tramo sirvió por sus dimensiones internas y su sistema constructivo, presentando estas medidas en el interior, 0,90 m de ancho por 1,75 m de alto, elaborado con fábrica de ladrillo abrigadas exteriormente con una capa de opus caementicium el cual en este tramo no se ha podido medir. El segundo trazado presenta iguales dimensiones interiores pero es donde se aprecian sus dimensiones y terminación exterior presentando las siguientes medidas, 2,40 m de ancho exterior y 2,40 m de alto desde el suelo interior a la cara exterior del opus caementicium.
De esta manera suponemos un modelo tipo para este tipo de colector principal.
Figura 3. Alzado sección del módulo de estudio para el Cardo A-B. Autores.
Para el secundario hemos seguido pautas similares, por un lado las acometidas al colector principal del Cardo A-B y una sección encontrada en el sector C de idénticas características.
Figura 4 Alzado sección del módulo de estudio para el decumano tipo. Autores.
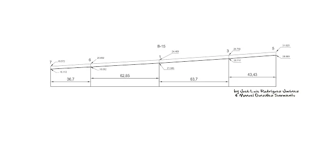
Una vez analizado su sistema constructivo se estudia su trazado. Se acomete el trabajo levantando un perfil del colector situado en el Cardo A-B, para ello se toman como base los puntos geodésicos situados en la planetaria concretamente en el punto B15 con cota +24,522. A partir de este obtuvimos las cotas de la actual calzada y las de la cloaca en los puntos descubiertos. Presentando una diferencia de cota que rondaba los 3,00 m.
De este estudio se puede deducir que las pendientes varían por tramos dentro de un margen pequeño y que prácticamente son paralelas calzada y cloaca.
Figura 5 Alzado sección de la calzada y cloaca del Cardo maximo A-B. Autores.
Si comenzamos de derecha a izquierda tenemos que la pte. entre los puntos 5-3 en la calzada es de un 7,05% mientras que en la cloaca es de un 7,26%, en el tramo 3-1 la calzada presenta una pte. del 6,65 % y a cloaca de un 6,49 %, en el siguiente 1-6 la de la calzada es de 5,78 % y la cloaca de 5,62 % y en el final 6-7 es de un 6,32 % para la calzada y de un 5,29 % para la cloaca. Esta diferencia en el último tramo es debido a una modificación de la calzada como consecuencia de actuaciones posteriores.
Como podemos observar el tipo de pendientes para una red de saneamiento era muy pronunciado de manera que con un caudal continuo mantenían en la red limpia de todo tipo de vertidos con total seguridad.
Sirva de referencia que actualmente las pendientes utilizadas para el saneamiento oscilan entre un 1,5 y un 2 % en circunstancias normales, dependiendo del tipo de canalización y la velocidad máxima de circulación. Calculándose los colectores a plena carga ocupando ¾ partes de su sección. Datos extraídos de las Instrucciones Técnicas para Redes de Saneamiento de EMASESA.
Red de distribución de agua.
Una vez analizadas las cloacas, surge la pregunta del porqué de las dimensiones que presentan en sus colectores generales y secundarios. Se entiende que no era su única misión el recoger aguas pluviales. Las dimensiones de las atajeas y su distribución, hacen cuestionarse muy seriamente la existencia de acometidas de agua a las distintas domus. Así como la posibilidad de espacios destinados al baño, letrinas, lavaderos, vertederos de aguas sucias procedentes de limpieza y otros tipos de aguas como resultado de actividades comerciales.
Se procede entonces a analizar la captación, almacenaje y distribución del agua, por lo que nos centraremos en el estudio y análisis del acueducto que abastecía a la ciudad, la orientación la facilita un trabajo realizado por la Confederación Hidrográfica del Guadalquivir.
Este presenta dos tramos, uno con origen de captación en Gerena y un segundo, fruto de la ampliación de la ciudad, con origen en los campos de Tejada. La suma de estos caudales obtenidos en medición efectuada en 1974 por la CHG, supera los 12 millones de litros de agua diarios.
Si la población de la ciudad, según cálculos recientes, rondaban las diez mil personas y les suponemos un consumo medio actual de 150 l/p/día nos siguen sobrando muchos millones de litros de agua después de abastecer sobradamente a dicha población.
Es por esto por lo que creemos que, atendiendo a los criterios de distribución imperantes en el momento, según relatos de Frontino , la demanda de abastecimiento de fuentes públicas en primer orden, edificios públicos de segundo e imperiales en tercer orden, todavía habría suficiente agua para abastecer a las distintas domus ya que el suministro a estas supondría, cuando más, un 10% de lo captado. Así que, como mínimo, deberíamos de contar con cuatro redes independientes de distribución repartidas por el parcelario, además de edificios destinados al reparto y decantación de las aguas que se podrían localizar en los estudios geofísicos y de georadar efectuados en el CAI .
Por otro lado si se atiende a la altimetría de la zona y la localización del castellum aquae, situado por encima de la cota + 36,60, se puede ver como por gravedad podría llegar agua a cualquier punto de la ciudad sin problema alguno, ya que el lugar más elevado se encuentra a la cota + 34,00. Gracias a los textos que disponemos y a las piezas halladas en distintas intervenciones, expuestas en el museo arqueológico de Sevilla, sabemos que disponían de tecnología suficiente para llevar a cabo dichas instalaciones de manera más que eficiente en esas fechas.
La red de distribución está principalmente ejecutada en plomo aunque hoy pueda parecer problemático seguramente no lo fuera tanto, de hecho muchos hemos conocido redes de distribución en viviendas hasta bien entrada la segunda mitad del siglo XX.
“Y es que, en efecto, el plomo de las tuberías puede disolverse parcialmente en el agua. Sin embargo, en el agua dura, con cierto contenido de cal, el plomo se une al carbonato y se forma entonces en el interior de las tuberías una capa de carbonato de plomo, que apenas es soluble. Esta capa funciona como un recubrimiento de protección para el plomo subyacente de las tuberías. Además, en condiciones normales (20º y poca presión) el plomo no reacciona con el agua. Sin embargo, cuando el plomo se pone en contacto con aire húmedo, la reactividad con el agua aumenta.
Para ello, los romanos dotaban a las tuberías de válvulas extractoras de aire (ventosas) que impedían la presencia perniciosa del aire en las tuberías de plomo. Las prioridades en la distribución, según Vitruvio, eran en este orden: Las fuentes públicas, las termas y finalmente las casas particulares. Casi todas las urbes romanas tuvieron suficiente caudal para colmar estas necesidades y aún otras más superfluas, como el riego de jardines y la limpieza de las calles, como indica Frontino en sus escritos. En el caso de los particulares, para las casas, el agua se distribuía previa concesión y con el correspondiente pago de un canon .”
Conclusión
Con este somero estudio, se ha intentado abrir una ventana para poder poner en valor la gran importancia de lo oculto, en este caso, la temática sobre la urbanización, el viario, el abastecimiento del agua y el sistema de saneamiento. Todo ello ejecutado en un tiempo, con un esfuerzo y una tecnología digamos que record para los medios existentes en ese momento.
Por ello a continuación, en un breve resumen, se van a facilitar unas cifras a modo orientativo de las cantidades y volúmenes que se están barajando tomando como muestra solo una pequeña parte del conjunto, con todo esto lo que se está pretendiendo es abrir una vía para futuros estudios eruditos sobre estas materias que por sus especiales características hasta este momento han sido poco tratadas.
Hay que tener en cuenta que los grandísimos volúmenes de tierra extraídos por medios manuales ya indican la magnitud e importancia que tenían los trabajos para la ejecución de una ciudad en sí. Para el caso de las cloacas primarias, tipo Cloaca Máxima, se estima el volumen de tierra desplazado en unos 11 m³ por metro lineal de calzada en el Cardo A-B, sin contemplar el esponjamiento al que se ven sometidas las tierras por el efecto de su extracción y carga. Esto supone que solo en el Cardo Máximo sito en los sectores A-B produciría 2.640 m³ en sus 240 m de longitud. Esto ejecutado con medios actuales necesitaría de 132 bañeras o remolques de 20 m³ de capacidad, el equivalente a una piscina olímpica.
En la ejecución de su fábrica de ladrillo se reciben 175 unidades por metro lineal de sección pero si incluimos la rotura en la ejecución y el transporte habrían necesitado prever entorno a un 15% más de material lo que serían 200 uds/m. Luego solo este tramo precisaría de 48.000 ladrillos del tamaño de un paquete de 200 A4 cada uno, además 120 m³ de mortero para recibirlos, lo que hoy en día suponen 20 camiones hormigonera de 6 m³ y 1.087 m³ de opus caementicium, otros 181camiones de hormigón. Cierto es que aunque se manufacturaron in situ precisaron un suministro de materia prima en una relación de 3 partes de árido y una de cal, medidas en volumen más el agua necesaria para su elaboración y curado. A todo esto hay que añadir la ejecución de una calzada romana de 8 m de ancho con una superficie total de capa de rodadura de 1.920 m² de piedra de Tarifa con un peso estimado de 324 kg/m², como hemos visto con antelación, y 876 m³ de material para subbase debidamente nivelado y compactado por tongadas con una densidad media estimada de 2.100 kg/m³.
Con respecto a la red de abastecimiento podemos ver algunos de los tramos expuestos en el museo arqueológico de Sevilla con secciones tipo que ya se encontraban reflejadas en los estudios llevados a cabo por Frontino, este dejó constancia de más de 17 calibres tipificados y de uso común en su fecha. Está por ver que aparezcan muestras en el interior de las parcelas que están siendo actualmente estudiadas o que se puedan estudiar, arrojando luz en este capítulo.
Como se puede apreciar por los datos obtenidos, en el módulo de estudio, formado por el colector principal y la calzada que lo cubre, arrojan unas cifras que nos hacen valorar, en medida aproximada, el consumo de recursos materiales, técnicos y humanos que se precisaron para hacer una urbanización que al no ser percibida a simple vista, no deja de tener suma importancia, ni estar convenientemente valorada.
Bibliografía.
• AMORES CARREDANO, F. (2012): “Itálica, 1912-2012. Una perspectiva centenaria”, Itálica, 1912-2012centenario de la declaración como monumento nacional, Sevilla, pp 23-38,
• CABALLOS RUFINO, A.; MARÍN FATUARTE, J.; RODRIGUEZ HIDALGO, J.M. (1999): “Itálica arqueológica”, Sevilla.
• CANTÓ DE GREGORIO, A. (1979): “El Acueducto romano de Itálica”, Madrid er Mitteilungen 20, pp. 282-337.
• CARRIAZO Y ARROQUIA, J.d.M. (1989):”A Carriazo (Archivo personal) Caja 144”, Fondo histórico de a US. Sevilla.
• CASTRO GARCÍA, M. M. (2010): “ La gestión integral del agua en la provincia hispania ulterior baetica”, Actas del Congreso Internacional AQVAM PERDVCENDAM CVRAVIT. Captación, uso y administración del agua en las ciudades de la Bética y el Occidente romano, Universidad de Cádiz, 9 al 11 de noviembre de 2009, pp 543-551.
• DE LA PEÑA OLIVAS, J.M. (2010): “Sistemas romanos de abastecimiento de agua”, V Congreso de Obras Públicas Romanas. Las técnicas y las construcciones de la Ingeniería Romana, pp. 249-281.
• DUKELSKY, C. (1993): “La casa romana, domus itálica, domus pompeyana. La casa romana de fin de la época imperial, la domus africana”, Buenos Aires.
• GARCÍA Y BELLIDO, A. (1979): “Colonia Aelia Augusta Itálica”, Madrid.
• GRANDE, A. y RODRIGUEZ HIDALGO, J.M. (2011): “Itálica Futura: Documentación, Preservación e Interpretación Digital de la ciudad romana”, VAR. Volumen 2 Número 4. ISSN: 1989-9947, pp 77-87.
• HIDALGO PRIETO, R. (2003): “En torno a la imagen urbana de Itálica”, Romula, nº 2. Sevilla. pp. 89-126.
• GONZALEZ PARRILLA, J.M. (2005): “Francisco Collantes de Terán Delorme y las excavaciones en Itálica entre 1935 y 1955”, Habis 36. Sevilla. Pp 333-347.
• JIMÉNEZ SANCHO, A. (2011): “ITALICA.La red de alcantarillado”, LA GESTIÓN DE LOS RESIDUOS URBANOS EN HISPANIA. XAVIER DUPRÉ RAVENTÓS (1956-2006) IN MEMORIAM, Merida, pp 145-154
• JULIO FRONTINO, S. Tr GONZÁLEZ ROLÁN, T. (1985): “De acueductu urbis romae”, CSIC.
• LEÓN ALONSO, P (1988): “Traianeum de Italica”, Sevilla.
• LOPEZ RODRIGUEZ, J. R. (2012):”ITÁLICA. Cien años de descubrimientos 1912-2012”, ITÁLICA. REVISTA DE ARQUEOLOGÍA CLÁSICA DE ANDALUCÍA, Nº 02. Santiponce, Sevilla. pp. 53-73.
• LUCIO VITRUVIO, M. Tr BLÁNQUEZ, A (2000) : “ Los diez libros de la arquitectura”, Barcelona.
• LUZÓN NOGUÉ, J. M. (1975): “La Itálica de Adriano” , Sevilla.
• MORENO GALLO, I. (2004):” Vias romanas. Ingenieria y técnica constructiva”, Madrid.
• MORENO GALLO, I. (2007):”Libratio Aqvarvm. El arte romano de suministrar las aguas”, publicado en el Catálogo de la Exposición: AQUARIA. Agua, territorio y paisajes en Aragón. Zaragoza.
• PELLICER, M. (1982): “Excavaciones en Itálica.(1978-1979): Muralla, cloacas y cisterna”, Excavaciones Arqueológicas en España vol. 121, pp. 206-224.
• PEREZ PAZ, A. (2010): “La Arquitectura del Agua. Abastecimiento, distribución y saneamiento”, Itálica-Santiponce: Municipium y Colonia Aelia Augusta Italicensium. Sevilla, pp 99-104.
• RODERO PÉREZ, S. (2002): “ Algunos aspectos de la decoración arquitectónica del Traianeum de Itálica”, ROMULA nº1. Sevilla, pp 75-106.
• RODRÍGUEZ HIDALGO, J. M; KEAY, S; JORDAN, D; CREIGHTON, J. (1999): “La Itálica de Adriano. Resultados de las prospecciones arqueológicas de 1991 y 1993”, Archivo Español de Arqueología , 72, pp. 73-97.
• ROMÁN LOZANO, A. (2007): “La piedra o losa de Tarifa”, Geología, Aljaranda 65 pg. 18-24






0 comments: